The Site’s Heritage

The site was originally two Victorian villas, later combined and transformed into the Dendy Hotel by Arthur Hyde Dendy – a key figure in Paignton’s development.

Renamed the Esplanade Hotel by the 1890s, it once featured a prominent Italianate tower and played a civic role on the seafront. Following its closure in 1988 The Esplanade Hotel became The Inn on The Green in 1990 and operated as a public house until its closure in 2024.

Today, extensive alterations and modern additions have eroded its architectural and artistic integrity, and the building no longer retains the form, detail, or setting that once gave it significance. As a result the building is not statutorily listed but is locally described as a ‘Non-Designated Heritage Asset’.

Paignton’s eclectic townscape reflects the town’s development as a seaside destination.

From the landmark presence of the Redcliffe Hotel, through the grand late-Victorian and Edwardian hotels that established a more formal resort architecture, to the later 20th-century leisure buildings reflecting changing entertainment and civic ambitions, each phase has shaped Paignton’s seafront.

Together, they form an eclectic yet cohesive architectural character, unified by their coastal setting and shared role in defining the town’s identity as a seaside resort.

Finding a viable future

Studies have been undertaken to assess the prevailing market conditions and the scope and viability of remodelling the existing building. The studies conclude that prolonged underinvestment, poor building condition and structural limitations make retention and reuse of the existing building not viable.

Two separate marketing exercises have also been undertaken and have failed to generate viable interest from commercial operators. Without a viable and deliverable use, the building cannot be sustainably maintained. In the absence of redevelopment, the realistic alternative scenario is continued vacancy and progressive decline.

The proposal for a purpose built flexible conference, function and events space complements the Green’s historic role as a major recreational and visitor destination and aligns with the ambitions of the Council, to create a more vibrant, economically resilient seafront that benefits residents, visitors and investors alike.

By combining permanent event infrastructure with nearby high‑quality accommodation, the development strengthens Paignton Green’s year‑round functionality, supports sustainable trip patterns, and reinforces its role as a vibrant civic asset capable of hosting a diverse mix of activities.

Opportunities and Constraints

A number of key opportunities and constraints have informed the development of the design proposals. These are illustrated and outlined below:

Heritage

Whilst it is not viable to keep the existing building, our ambition is to preserve and enhance the historic boundary treatments and create a building that will lead to future economic and social benefit.

Flood Risk

The site falls within Flood Zone 3 which requires that we raise the ground floor level as mitigation. The proposed landscape strategy allows level access through graded footpaths at the front and side of the site.

Townscape

Proposals will need to maximise opportunities to strengthen the site’s relationship to The Green, Paignton Pier and the wider townscape.

Trees & Landscaping

There are three Date Palms that are subject to Tree Protection Orders that will be retained and complemented by landscape improvement.

Ecology

Ecology surveys highlight the development as having negligible/low bat roosting potential and a 40% positive Biodiversity Net Gain.

Sustainability

A new building provides the opportunity to create social, economic and environmental sustainability benefits. Its central location also promotes sustainable forms of transport.

Site Layout and Massing

The site layout and massing approach responds positively to its immediate context and the wider townscape to provide a flexible and contemporary building fit for the 21st Century.

The diagrams and site plan below illustrate how the layout and massing of the proposed building has responded to the opportunities and constraints of the site.

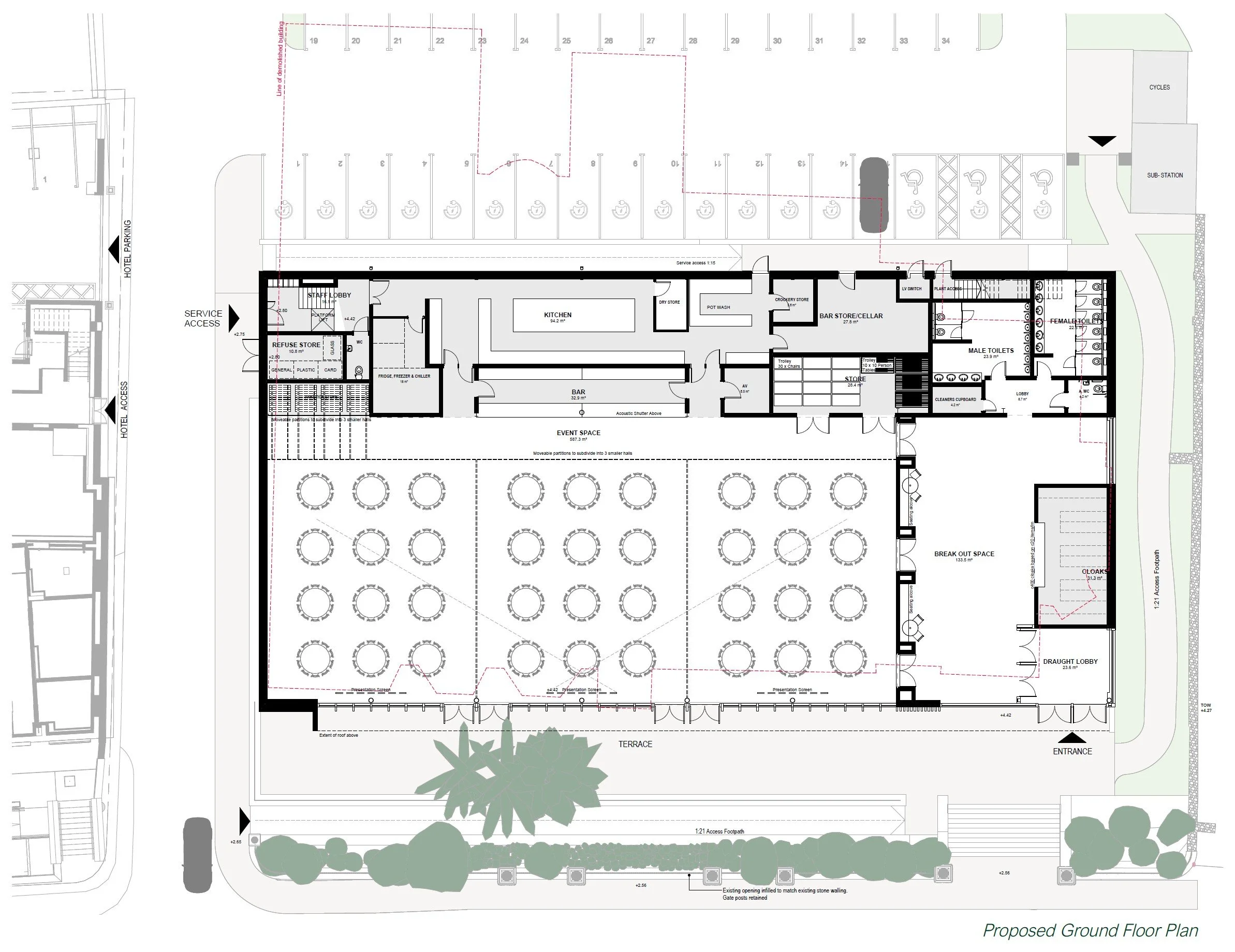
Proposed Floor Plan

The flexible internal layout allows the building to be configured to suit a range of events from smaller gatherings of up to 60 people to larger functions with over 500 guests.

Support spaces and parking (for around 65 cars) are located along the western elevation of the building to facilitate servicing and maximise the active frontages to the east. A terrace runs the full length of the east elevation, allowing guests to breakout during events and enjoy views of the Green and seafront.

Appearance

Historic Art Nouveau Light Fixtures and Remnants of Art Deco Post and Light Fixture

The images here illustrate the external appearance of the proposals. While these are still being refined, the intention is to create a building that draws inspiration from the heritage of the site and seaside ballrooms of the past whilst looking to the future.

The Proposed Materials Palette

1. Brass Mesh - Pier Beacon

High quality finish and backlit to create interest reflecting detailing of existing art nouveau post lamps and historic Jubilee arch (demolished).

2. Render - Band and Base Material

Predominant material in local context - provides clean and modern finish. To be detailed and treated to avoid staining and long term maintenance

3. Glass Reinforced Concrete - Frieze

Pre-cast to incorporate detailing to reflect beach shell and existing art deco gate post detailing

4. Aluminium window framing

Robust system with extended mullions to create depth and solar shading

The proposed design has been inspired by the heritage of the site, its wider physical and cultural context and by precedents of the British seaside ballroom and pavilion.

Site Heritage

Whilst we are unable to retain the existing building there are important features which we have used to guide our proposals:

• Asymmetrical composition (referencing the Italianate influences on the original villa)

• Historic boundary walling and gate posts

• Retained Art Nouveau and Art Deco lighting features that showcase the evolving architectural styles and modernism

Spirit of Paignton and the Seaside Ballroom

Paignton from the 1920s leaned into being an accessible, fun, and modern resort town. The evolution of seaside ballrooms and pavilions echoes this development and consequently reflects the cultural and architectural trends of their time.

Composition

The proposed composition blends horizontal and vertical lines to create a building that responds to the human scale, contrasts with the neighbouring hotels and embodies the evolution of the seaside pavilion.

A tower element, referencing the Italianate heritage, marks the main entrance and axial relationship to Paignton Pier.

Restored and enhanced boundary treatment and new coastal landscaping provide a high quality and positive contribution to the setting of the building and wider public realm.

Environmental Sustainability

In line with Torbay Council’s goals for tackling the Climate Emergency, the strategic approach to the development is to reduce the overall consumption of energy towards net zero in use, whilst using and supplying greener forms of energy.

An approach supported by investment and defined by the following energy hierarchy:

Be Lean - Use Less Energy
Be Clean - Supply Energy efficiently
Be Green - Use Renewable Energy

A high environmental specification will be capped with Air Source Heat Pumps and Solar PV Array.

Be Lean

The energy strategy aims to implement passive design and energy efficiency measures to reduce energy demand and CO₂ emissions. This includes:

• Passive solar shading to control gains in summer whilst allowing heat gains in winter

• Highly insulated building envelope

• Mechanical Ventilation Heat Recovery System

• LED lighting

Be Clean

The strategy includes the use of clean energy source technologies

• Air Source Heat Pumps for hot water

• Electric Car Charging

Be Green

Significant CO₂ savings are expected through the Be Lean and Be Clean measures. These will be supplemented by a large roof mounted PV array that can provide surplus energy to the neighbouring Ibis hotel.

Biodiversity net gain

The introduction of new areas of bio-diverse rich soft landscaping will provide a c40% improvement on the existing site’s biodiversity

Embodied Carbon

Opportunities will be explored, as the design evolves, to use existing site waste for sub base materials and for the use of prefabricated components to reduce waste and minimise embodied carbon.